大型舰船作为海上作战部署、战略投送与跨域综合保障的核心平台,其舱室布局系统是实现舰船任务功能、保障装备稳定运行与人员安全驻留的基础功能载体,其设计合理性直接关联舰船全生命周期的作战效能与运行可靠性。本文聚焦大型舰船核心动力舱,该舱室作为舰船能量供给中枢,具有典型代表性。从功率等级来看,涵盖中大功率20~50 MW的推进动力系统与辅助动力单元,可覆盖驱逐舰、护卫舰等作战舰船及综合补给舰、两栖攻击舰等保障类舰船的动力配置需求;从设备组成而言,集成主机、减速器、发电机、换热设备及管路阀件等关键组件,占舰船总设备重量的30%~40%,是舱室布局中设备密集度最高、空间约束最严格的区域;从空间规模维度,典型核心动力舱尺寸多为15 m×8 m×6 m,且需预留设备维护通道宽度不小于1.2 m与应急逃生路径,空间利用矛盾突出。
从舰船任务属性维度来看,不同类型大型舰船的功能导向差异对舱室布局形成刚性约束。作战类舰船如航空母舰、导弹驱逐舰需以指挥-探测-武器系统协同为核心,舱室布局需构建紧凑的作战链路,确保指挥中枢与飞行甲板、武器操控舱的指令传递延迟控制在战术要求范围内[1]。
舱室布局的适应性设计与验证是突破上述环境约束、提升舰船综合性能的关键环节,其价值体现在安全、功能与人员适配3个核心维度。在安全性层面,通过适应冲击、振动环境的布局优化,可降低设备脱落、管路破裂等突发事故的发生概率;在功能性层面,针对电磁、盐雾等环境的适应性布局,能保障核心系统的持续稳定运行;在人员适配层面,基于人因工程的布局设计可改善密闭受限环境下的人员驻留体验。上述设计目标的实现均依赖系统性的适应性设计与科学验证体系[2 − 3]。
从国内外研究现状来看,舰船舱室布局设计已形成一定技术积累,但针对多环境耦合下的适应性研究仍存在显著局限性。国外海军强国如美国、俄罗斯在作战类舰船布局设计上积累了丰富经验。美国尼米兹级航母通过模块化舱室划分实现功能区域的快速调整,俄罗斯北风之神级核潜艇通过抗冲击布局设计提升水下生存能力,但此类研究多聚焦单一环境因子如冲击载荷、电磁干扰的影响分析,缺乏对摇摆-振动-盐雾多场耦合效应的系统性考量,导致布局设计在复杂海况下易出现功能失效;国内研究则在保障类舰船领域取得突破,如901型综合补给舰通过优化物资舱与补给站的空间衔接,将单次补给效率提升20%,但在作战类舰船的动态适应性与国外先进水平仍存在一定差距[4]。本文对大型舰船特殊环境下舱室布局的适应性进行设计及研究,建立相应的验证方法及指标体系。
1 核心概念界定及布局影响因素分析 1.1 核心概念界定本研究涉及的大型舰船特指吨位在万吨级及以上,涵盖作战、保障、科研等类型的海上平台,其中作战类以火力打击与指挥控制为核心任务,保障类聚焦物资补给或医疗救护,科研类则侧重海洋探测与数据采集。舱室布局是指舰船舱内空间的功能化规划,核心涵盖功能分区划分、设备安装位置确定、人员活动空间预留及管线路由规划等要素,是舰船功能实现的空间载体[5]。适应性设计则以舱室布局为对象,核心目标包括抵抗海洋特殊环境干扰、满足舰船任务动态切换需求、兼容后期设备改装与功能拓展,确保布局在全生命周期内适配多场景需求。
1.2 特殊环境对布局的影响分析大型舰船面临的多维度特殊环境,对舱室布局形成直接且关键的约束[6]。
1)海洋动力学环境下,舰船航行会遭遇横摇角可达±30°的周期性摇摆、频率范围10~50 Hz的宽频振动及加速度峰值可达100g的瞬时冲击,这些会直接影响舱内设备结构稳定性阈值;
2)密闭受限环境中,船体结构使舱室多呈狭长型或多隔间分布,人均居住与操作空间仅为陆基建筑的1/3−1/2,且通风、管线系统需嵌入有限空间,导致空间利用率与功能优先级矛盾突出;
3)恶劣工况环境下,海上相对湿度常维持80%−95%的高温高湿、含盐量0.01~0.03 mg/m3的高盐雾浓度,以及雷达与通信系统产生的电磁场强度可达100 V/m以上的强电磁辐射,要求舱室布局对通信模块、导航系统等精密电子设备实施屏蔽隔离,同时避免海水管路、燃油舱等腐蚀源与电气设备空间重叠。
2 动力舱分模块适应性布局方案 2.1 核心功能设计动力舱作为大型舰船能量供给的核心枢纽,其布局设计需以振动防控、安全冗余、运维高效为三维核心目标,结合海洋动力学环境与密闭空间约束,形成精细化布局方案,同时保证检修通道与应急空间规划,得到的动力舱平面布局方案如图1所示。
|
图 1 动力舱平面布局示意图 Fig. 1 Schematic diagram of engine room plan layout |
1)振动隔离与设备布置
采用刚性承载+弹性缓冲的复合布局策略,将主机、变速箱、减速器等重型动力设备集群布置于船体双层底强肋骨与纵桁交叉的刚性支撑区域,该区域船体结构刚度较普通区域提升40%以上,可有效分散设备运行产生的振动能量。所有设备基座均配备高阻尼橡胶弹性支撑装置,其阻尼系数需根据设备振动频率精准匹配,确保将振动传递效率控制在15%以下。设备排列严格遵循“动力传输路径最短”原则,按“燃油供给模块—主机模块—变速箱模块—传动轴模块”的流程化顺序布置,减少动力传输过程中的能量损耗与附加振动,各设备间距控制在1.5~2.0 m,既满足设备散热需求,又为临时检修预留操作空间。
2)检修通道与应急空间规划
检修通道采用“主通道+分支通道”的网状布局,主通道宽度不小于1.8 m,确保大型维修设备可顺利通行;分支通道宽度不小于1.2 m,直达各关键设备检修点。在主机与变速箱上方预留尺寸不小于3.0 m×2.5 m的吊装孔,并配套可快速开启的液压式舱顶盖板,盖板开启时间不超过5 min,满足核心部件紧急拆卸与更换需求。同时,在舱室角落设置独立的应急操作空间,配备应急控制箱、手动操作阀等设备,确保在主控制系统故障时,操作人员可快速进入该区域实施紧急停机、油路切断等处置动作。
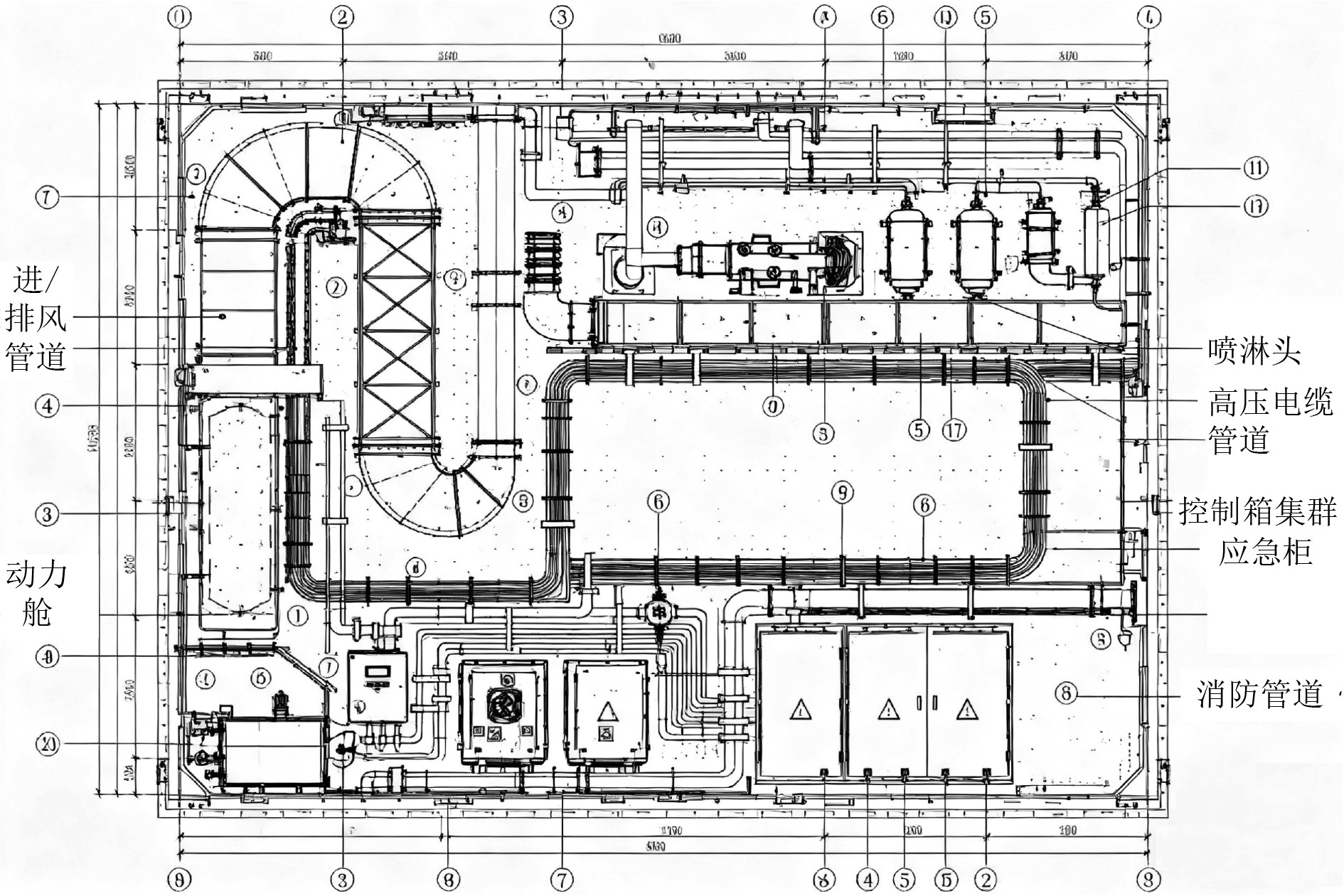
2.2 关键系统与舱室布局的整合设计动力舱内通风散热、消防安全、供电控制等关键系统的布局与舱室空间的适配性,直接决定整体运行效能与安全冗余。设计基于系统协同、空间集约、风险可控的原则,实现各系统与舱室布局的深度整合,避免单一系统布局独立决策导致的空间冲突与功能内耗,图2为动力舱关键系统整合布局图,通过通风散热系统整合、消防与安全系统整合以及供电与控制管线整合来实现。
|
图 2 动力舱关键系统整合布局图 Fig. 2 Diagram of integrated layout of key systems in engine room |
1)通风散热系统整合
采用“分区对流+精准散热”的布局模式,结合动力舱热负荷分布特征,在舱室两侧下部设置4组进风通道,进风口尺寸为1.0 m×0.8 m,配备防盐雾过滤网与电加热除湿装置,可将进入舱内的空气含盐量控制在0.005 mg/m3以下,相对湿度调节至60%以下。舱室顶部沿纵向布置2组主排风管道,在主机缸体、涡轮增压器等高温区域设置局部排风罩,通过导流板引导热空气快速汇入主排风管道,确保舱内最高温度不超过45℃。通风管道均沿舱室边缘与设备间隙布置,避开检修通道与操作区域,管道外壁包裹隔热降噪材料,既减少热量散失,又降低气流噪声。
2)消防与安全系统整合
消防系统采用“全域覆盖+重点防控”的布局策略,在舱室内按每50 m2设置1组喷淋头的标准,形成全域消防覆盖网络;在燃油管路接头、润滑油箱、排气管等高危区域,额外增设泡沫灭火装置与感温感烟探测器,探测器响应时间不超过2 s。消防水管沿舱室立柱与舱壁敷设,采用耐高温耐腐蚀的不锈钢材质,管道接口采用快速接头设计,便于破损后快速修复。同时,在舱室入口处设置消防栓与应急呼吸器存放柜,存放柜位置与主通道直接连通,确保紧急情况下可快速取用。
3)供电与控制管线整合
供电管线采用高压动力电缆与低压控制电缆分区隔离的布局方式,高压电缆沿舱室底部桥架敷设,低压控制电缆沿舱室上部桥架敷设,两者垂直间距不小于0.5 m,避免电磁干扰。所有电缆均选用阻燃、抗振动、耐高低温的船用专用电缆,桥架采用分段式设计,每段长度不超过3 m,便于后期检修与更换。控制箱集群布置于舱室入口侧的独立控制区域,控制区域与设备操作区通过防护栏隔离,控制箱面板朝向检修通道,便于操作人员实时观察设备运行参数(转速、油温、油压等),并快速进行参数调整与故障处置。
2.3 动态适应性设计考虑到大型舰船任务场景的动态变化,动力舱布局需突破传统固定模式的局限,通过模块化与冗余化设计,实现对不同任务需求的快速响应与功能适配,保障动力系统在战时应急、远洋续航、设备升级等多场景下的稳定可靠。
1)模块化设备基座设计
所有核心动力设备的安装基座均采用标准化模块化设计,基座预留多组螺栓孔位,兼容同功率等级的不同型号设备,同时基座底部设置可调节支撑脚,可在±50 mm范围内微调设备水平度。模块化基座与船体结构采用可拆卸式连接,通过专用工装可实现设备的快速拆卸与更换,单台主机的拆装时间可控制在8 h以内,满足动力系统升级改造或故障应急替换的需求。
2)弹性冗余空间规划
在动力舱尾部预留占总空间20%的弹性冗余区域,该区域配备标准化的临时供电接口、油路接口与通风接口,平时作为备件存储区,存放常用维修工具与易损部件;当舰船执行长时间续航任务、远洋保障任务或需要临时提升动力输出时,可通过快速连接接口加装辅助发电设备、燃油补给装置等,实现动力保障能力的灵活拓展。冗余区域与主设备区域通过可移动防护隔断分隔,隔断采用轻质高强度合金材料,拆卸组装时间不超过30 min,可快速实现空间功能转换。
在工程实施过程中,动态适应性设计需重点解决三大核心技术难点。一是接口标准化与兼容性问题,不同厂家设备的接口尺寸、压力等级存在差异,需依据《GB/T 19834 船舶电气设备通用要求》《CB/T 3254 船舶管路附件通用技术条件》制定统一接口标准,对供电接口采用公头标准化+母头适配转换设计,油路接口设置可调节密封垫片,确保不同设备接入时的密封性与兼容性;二是设备更换后的重量平衡与振动耦合问题,模块化基座拆装可能导致动力舱局部重量分布变化,需通过有限元分析软件提前计算不同设备组合的重量重心,在基座底部设置可增减的平衡配重块,同时在基座与船体连接部位加装可调阻尼器,避免新设备与船体结构产生共振;三是弹性冗余区域的结构强度与空间利用率平衡问题,冗余区域需同时满足设备加装与人员操作空间需求,采用纵横向可拆卸承重梁+分层式设备支架设计,承重梁材料选用屈服强度≥345 MPa的低合金高强度钢,通过Ansys结构强度仿真验证,确保加装2台5 MW辅助发电机后,区域结构应力仍控制在许用应力的80%以内,同时分层支架可实现设备上下立体布置,空间利用率提升40%。
3 适应性设计的验证方法与指标体系针对动力舱在振动隔离、系统整合、动态适配等方面的核心设计,需通过多维度验证方法与量化指标体系,确保布局方案满足特殊环境下的安全性、功能性与耐久性要求。
3.1 仿真验证方法针对动力舱关键环境响应与系统效能,通过多物理场仿真实现设计方案的前置验证。
1)动力学仿真测试。采用Ansys Mechanical 建立动力舱全尺寸有限元模型,精准建模主机、变速箱等设备的几何参数与材料属性,以及弹性支撑基座的阻尼特性;通过Ansys Aqwa导入海洋动力学边界条件,进行瞬态动力学分析。在设备基座与船体连接部位设置加速度监测节点,采集振动响应数据,通过计算“设备振动加速度与船体振动加速度的比值”,得到振动传递效率。
2)流场仿真测试。利用Fluent构建通风系统三维模型,按设计尺寸还原4组进风通道、局部排风罩及顶部主排风管道;设置边界条件为舱外空气含盐量为0.01~0.03 mg/m3、相对湿度80%~95%、进风风速3 m/s,采用k~ε湍流模型进行稳态仿真。在舱内高温区域(主机缸体、涡轮增压器周边)及进排风管道出口布置温度与浓度监测点,迭代计算后提取舱内最高温度、进排风温差及盐雾过滤后的空气含盐量数据。
3)电气系统仿真测试。通过CST软件建立电缆桥架与控制箱的电磁仿真模型,按“高压电缆底部敷设、低压电缆上部敷设(垂直间距0.5 m)”的布局建模,设置高压电缆工作电流300 A、低压控制电缆信号频率1 kHz;在控制箱表面布置电磁感应监测点,仿真计算监测点的电场强度,转换为电磁干扰强度数据。
4)人因工程验证。在地面全尺寸动力舱模拟平台中,启动六自由度摇摆振动系统,精准复现10~50 Hz的振动环境;选取10名具有5年以上工作经验的轮机员作为受试者,统一培训测试流程后,依次完成主机参数调整、管路螺栓拆卸与安装、应急停机按钮触发等典型操作。通过高清摄像机记录操作过程,统计操作误差并计算误差率;采用专业心率监测仪实时采集受试者操作全程的心率数据,通过对比静态环境与振动环境下的心率变异系数,量化疲劳度;同时用计时器记录单次操作的完成时间,计算与静态环境的时间差值比例。
3.2 仿真模拟验证结果在仿真模拟验证中,设备振动传递效率控制在 13.2%,不仅低于15%的目标值,更较传统布局的28.5%降低53.7%,说明“刚性承载+弹性缓冲”的设备布局策略能有效削弱海洋动力学环境带来的振动影响;舱内最高温度稳定在42.8℃,较传统布局的51.3 ℃降低16.6%,盐雾过滤后空气含盐量为0.003 mg/m3,远优于传统布局的0.008 mg/m3,证明“分区对流+精准散热”的通风布局既实现了高效散热,又能适配海上高盐雾环境。电气系统方面,控制箱区域电磁干扰强度为43.5 dBμV/m,较传统布局的72.1 dBμV/m降低39.7%,且远低于50 dBμV/m的限值,体现了“分层隔离”的管线布局对电磁干扰的良好抑制效果。
如表1所示,人因工程验证中,振动环境下的操作误差率仅为3.8%,较传统布局的8.7%降低56.3%;人员到达应急操作空间的平均时间为24.6 s,较传统布局的38.2 s缩短35.6%;冗余区域功能转换时长26.3 min,较传统布局的45.8 min缩短42.6%,均优于目标要求,表明检修通道宽度规划、应急空间布局及模块化设计能充分适配人员运维与应急处置需求,有效降低了特殊环境对操作效率的影响;同时,轮机员操作疲劳度较静态环境增加15.2%,较传统布局的28.9%降低47.4%,控制在合理范围,保障了长期作业的安全性与舒适性。整体测试结果表明,该布局方案能有效应对大型舰船的特殊环境约束,较传统设计具有显著优势,为动力舱的稳定运行提供了可靠支撑。
|
|
表 1 仿真模拟验证结果 Tab.1 Results of simulation and verification |
本文针对大型舰船特殊环境下舱室布局的适应性难题,以动力舱为典型研究对象,构建了分模块设计方案及多维度验证体系,为提升舰船核心舱室的环境适应性、运行安全性与运维高效性提供了重要的理论支撑与工程参考。本文研究成果的应用场景广泛,可直接适配万吨级以上各类大型舰船的动力舱设计,同时可为现役舰船动力舱的升级改造提供技术蓝本,尤其适用于需要提升振动防控能力、应急响应效率及任务动态适配性的舰船现代化改装项目。本文结论包括:
1)提出的“刚性承载+弹性缓冲”的振动隔离布局、“分区对流+精准散热”通风整合方案及“模块化基座+弹性冗余空间”动态设计策略,能够有效破解海洋动力学环境、密闭受限环境及恶劣工况的多维度约束。
2)对提出的动力舱进行模拟测试,各项核心指标均满足设计目标,验证了该布局方案的科学性与工程可行性,为同类核心舱室的适应性设计与验证提供了可复用的技术框架。
| [1] |
魏文俊, 朱磊, 王柳. 船用空调系统多工况适应性改造[J]. 船舶与海洋工程, 2025, 41(2): 35-43. WEI W J, ZHU L, WANG L. Multi-condition adaptability transformation of marine air conditioning system[J]. Ship and Ocean Engineering, 2025, 41(2): 35-43. |
| [2] |
尹瑞芳, 何黄胜, 张宇, 等. 某改装船总体布置及结构设计优化[J]. 广东造船, 2025, 44(1): 35-38. YIN R F, HE H S, ZHANG Y, et al. Overall layout and structural design optimization of a refitted ship[J]. Guangdong Shipbuilding, 2025, 44(1): 35-38. |
| [3] |
孙川. 大型邮轮建造船厂的设备设施适应性改造项目范围策划[J]. 船舶工程, 2018, 40(S1): 371-376. SUN C. Scope planning of equipment and facility adaptability transformation project for large cruise ship building shipyard[J]. Ship Engineering, 2018, 40(S1): 371-376. |
| [4] |
马林, 陈登凯, 施红旗, 等. 基于多种群遗传算法的舰艇生活舱室布局优化设计方法研究[J]. 西北工业大学学报, 2025, 43(1): 189-199. MA L, CHEN D K, SHI H Q, et al. Research on optimal design method of warship living cabin layout based on multi-population genetic algorithm[J]. Journal of Northwestern Polytechnical University, 2025, 43(1): 189-199. |
| [5] |
陈鹏华, 吴坷. 船舶三维总体布置设计技术应用研究[J]. 舰船科学技术, 2020, 42(13): 13-17. CHEN P H, WU K. Research on application of ship 3D overall layout design technology[J]. Ship Science and Technology, 2020, 42(13): 13-17. |
| [6] |
邰益军. 船舶内装设计中的多功能性设计策略探讨[J]. 船舶物资与市场, 2024, 32(11): 46-48. TAI Y J. Discussion on multifunctional design strategies in ship interior decoration design[J]. Marine Materials and Markets, 2024, 32(11): 46-48. |
2025, Vol. 47
