在甘蔗糖厂,糖液气浮清净设备较多应用于糖 浆的清净,如英国Tato 公司设计的圆筒形糖浆浮清 器和我国的双层浮清器等。圆筒形糖浆浮清器和平 流式浮清器在国内较多应用于糖汁磷浮,借助热能 产生“汽泡”的热浮清净设备在红糖厂应用较为普 遍,如连续加热除泡器和间隔加热除泡槽等,但还 没有运用于大型糖厂生产的实例。本文针对糖液气 浮清净和热浮清净设备的现状,提出糖液气浮清净 和热浮清净相结合的一体化清净设备──热力管式 糖液浮清器。
糖液气浮技术与热浮清净技术的明显区别在于 “气”与“汽”的不同。气浮技术是借助机械动能 产生“气泡”,而热浮清净技术则是借助热能产生“汽 泡”,“气泡”与“汽泡”虽然同样起到吸附糖液凝 聚物浮升的作用,但两者的性质是不同的:“气泡” 属物理性质的,而“汽泡”则属热力性质的。糖液 气浮技术“气泡”适用温度范围在50~99℃,糖液 热浮清净技术“汽泡”的适用温度范围在90~99℃, 温度再高糖汁就沸腾,会把泡沫打烂,使悬浮的凝 聚物分散到蔗汁中,也就达不到除去非糖分的效果。
笔者经过研究,提出了糖液气浮清净技术与热 浮清净技术相结合,能充分发挥各自清净优点的浮 清技术。
具体的工艺过程为:第1 步,采用糖液气浮技 术在较低的温度下(50~80℃),分离出重度较轻的 固形物及熔融温度低的凝聚物,如蔗腊、蔗脂、蔗 糠及淀粉等;第2 步,在中温下(80~99℃)分离 重度稍重的凝聚物。分离原则:在清净工序的第1 步就尽量多地除去固形物和热溶性杂质,澄清工序 的温度逐渐从低温升到高温,澄清剂的添加量逐渐 从少到多,后工序的沉淀物可回流作为前工序的澄清凝核物。为实现这一构想,作者设计了集气浮与 热浮于一体的热力管式糖液浮清器,使气浮与热浮 的结合实现一体化。
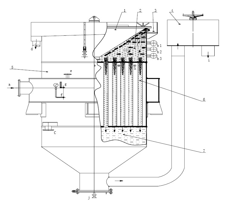
热力管式糖液浮清器,是对气浮和热浮清净工 艺进行总结所提出的一种糖液浮清设备,该设备让 气浮和热浮同时起作用,也就是进行气浮清净的同 时进行热浮清净,使之达到较好的清净效果。热力 管式糖液浮清器设备构造由7 部分组成(图1 所示): ①浮清器浮动盖;②上浮室;③浮渣槽;④液位调 节器;⑤加热室;⑥热力式浮清管;⑦清汁室。该 设备的上部用于低温气浮,包括浮清器浮动盖、上 浮室、浮渣槽;中部用于中温气浮,包括加热室、 热力式浮清管;下部为清汁室,用于清汁的集中输 出。热力管式糖液浮清器各管口情况如表1 所示。
|
1. 浮清器浮动盖;2. 上浮室;3. 浮渣槽;4. 液位调节器;5. 加热室;6. 热力式浮清管;7. 清汁室。 图1 热力管式糖液浮清器 |
|
|
表1 管口表 |
热力管式糖液浮清器的构造性能特点是:①浮 渣沿着浮清器浮动盖的锥形导向向上自动排渣,无 需安装电动机械撇泡机,排渣迅速;②环锥形浮渣 浓缩段上部被分隔成多个独立浓缩室,保持浮渣浓 缩过程相对稳定,以避免自动排渣过程相互影响; ③热浮管需要除垢清洗时,吊移浮清器浮动盖即可; ④热浮管为立式结构,沿用了管式加热器的特点, 通洗方便;⑤该设备构造比现有气浮或热浮器复杂, 造价也略高,但因其同时拥有气浮与热浮工艺的优 点,所以对混合汁的前段澄清处理较为有效。
热力管式糖液浮清器规格大小及外形尺寸由应 用对象、生产规模决定。
热力管式糖液浮清器的主要设计参数如下:
浮渣在热力管中上升速度V上 = 1.5~2.5 m/min; 糖液在热力管中的下降速度V 降 = 0.4~0.8 m/min; 热力管径一般为DN50~DN80 mm,长度为1.5~2.0 m。
热力管式糖液浮清器同时具有气浮清净与热浮 清净2 种功能,设备上浮室为气浮段,设备加热室 为热浮段。
在混合汁搅拌桶中,温度为45~55℃的混合汁 在进入热力管式糖液浮清器前,加灰调节其pH 值 至5.6~6.6,正常澄清时,石灰用量约为0.02%~ 0.05%蔗,打气泡并加入适当的絮凝剂搅拌均匀。混 合汁沿b1 糖液环形管以切线方向进入上浮室上段, 混合汁絮凝物受气浮力的作用而上升。由于该浮清 器锥形浮动盖与上浮室形成一个下大上小的环锥形 体,絮凝物上浮空间越来越小,絮凝物逐渐浓缩成 为浓稠深褐色的浮渣,最后在环形锥环顶端自动溢 出至浮渣槽,完成气浮清净过程。
在热力管式糖液浮清器中,糖液在上浮室内的 pH 值和温度是上低下高,上部为气浮清净区,中部 为反应区,下部为热浮清净区。
沿b1 糖液环形管进入的混合汁轻质絮凝物在 热力管式糖液浮清器浮清区的中上部分离,得到一 次浮清汁,但一次浮清汁的杂质还较多,蔗汁呈浑 暗色。在进入热浮管前大部分一次浮清汁通过b2 循 环液环形出管被抽出至搅拌桶,同时添加一定量的 澄清剂和絮凝剂,进一步与蔗汁中的杂质作用。然 后,通过b3 循环液环形入管送至浮清区的中下部, 反应后的蔗汁在此区间内得到絮凝和上升汽泡的加 热。在热浮管中,清汁向下移动,絮凝物由于加热 管内所产生汽泡的作用而向上浮升,经过上浮区中 部,并与气浮区絮凝物络合在一起并向上浮升。热 浮管中分离所得的二次浮清汁进入清汁室,并通过 液位调节阀出口i 排出。至此,二次浮清汁已被除 去大部分的杂质,为下一澄清工序的清净打下了良 好的基础。
热力管式糖液浮清器是一种既具有气浮清净功 能,又具有热浮功能的浮清设备,其浮清工艺的主 要特点如下:
(1)糖汁气浮清净与热浮清净全部在热力管式 浮清器内完成,浮清汁和浮渣的排放通过调节液位 阀来实现,不需要安装电动机械撇泡装置。
(2)环锥形浮渣浓缩段上部被分隔成多个独立 浮渣浓缩分室,保持浮渣浓缩过程相对稳定,以避 免自动排渣过程相互影响。
(3)浮清器热管加热蔗汁后,起到产泡浮渣和 糖汁逆向过滤的作用,阻止悬浮物向下沉降,清汁 则由于重力作用而在管内缓慢向下移动。
(4)浮清器热管上端的浮渣逐级向上浮升,前 一级的浮渣作为后一级的清净剂和凝核物。第一级 浮清所添加澄清剂的量较少,最后一级浮清添加澄 清剂的量较多,这样就可以最大限度地提高澄清剂 的吸附量,物尽其用,减少澄清剂的使用量。
(5)热力管式浮清器上浮室外设有b1、b2 循 环液加药系统,可以调节澄清剂的使用量,加强对 系统澄清效果的实时控制。
(6)该工艺对浮渣进行稀释及二次浮清处理, 对浮渣进行“洗糖”,回收了其中的大部分糖分,同 时也会复溶一小部分杂质。
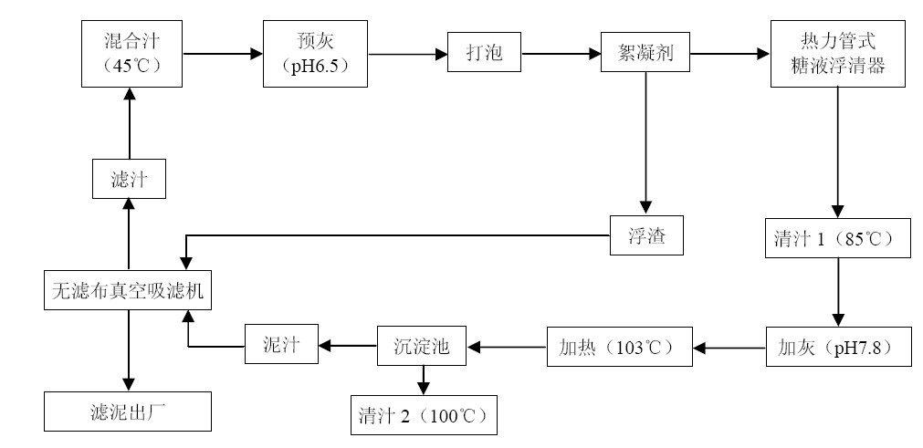
热力管式混合汁浮清工艺流程示意图见图2。 混合汁气浮与热浮相结合的清净技术与其它有 效澄清工艺技术的结合应是多样性和综合性的。
|
图2 热力管式混合汁浮清工艺流程示意图 |
在混合汁上浮清净工艺中,压榨法糖厂的混合 汁浮渣量对蔗比约为1.5%~2%,渗出法糖厂的浮渣 约为6%~8%。不论是气浮清净、热浮清净或是气 浮与热浮结合的清净,其浮渣的处理是整个浮清系统中一个非常重要的环节。由于浮清清净过程中所 添加的澄清剂较少,浮渣中胶质含量较大、粘度高, 如果处理不当,则会出现过滤困难的现象。在本工 艺中,浮渣的处理方法为:浮渣→热水稀释→加灰 →充气→絮凝→渣汁浮清。二次浮渣送往浮渣搅拌 槽,添加少量蔗渣糠,加灰调节其pH 值至7.3~7.5, 用蒸汽直接加热至95~100℃,通过压滤机过滤, 滤清汁送往压榨间作渗透水使用,滤饼可干燥作饲 料、有机肥及提炼蔗腊、蔗脂等。
浮渣的另一个处理方法是既简单而又传统的处 理方式:浮渣经过滤,滤液送往酒厂用作制酒原料。
下面介绍热力管式糖液浮清器2102/13 年榨季 在越南庆和糖厂的运用情况。
|
图3 越南庆和糖厂热力管式混合汁浮清工艺流程 |
热力管式混合汁浮清器澄清效果见表2。浮渣 浓度56%,混合汁中约94%的固形物被去除,清汁 与混合汁纯度差为0.8 AP,清净效率约为5%,脱色 率15%。若混合汁浮清过程添加磷酸作辅助澄清剂, 则清净效率可提升至8%~10%。
|
|
表2 热力管式混合汁浮清器澄清效果平均值 |
热力管式糖液浮清器将糖液气浮清净技术与热 浮清净技术结合在一起,扩大了浮清技术的应用范 围,该工艺不仅可以应用于混合汁、滤汁及中间汁 浮清清净,还可应用于糖浆浮清清净,在制糖生产 应用时,根据各工序对澄清效果要求的不同,可采 用一级浮清或多级浮清工艺。混合汁气浮与热浮相 结合的清净技术与其它有效澄清工艺技术的结合应 是多样性的和综合性的。
2013