2. 长江大学地球科学学院, 武汉 430100;
3. 长江大学地球物理与石油资源学院, 武汉 430100
2. School of Geosciences, Yangtze University, Wuhan 430100, China;
3. School of Geophysics and Oil Resources, Yangtze University, Wuhan 430100, China
过套管电阻率测井是一种新的测井技术,突破了油气井中金属套管对地层电阻率测量的制约,在油藏动态监测、水淹层识别、剩余油气资源评价等方面发挥了独特的应用优势(Aulia et al., 2001;Ferguson et al., 2001;Douglas et al., 2002;Tchambaz,2004;Zhou and Wicaksono, 2004;原宏壮等,2005;Krivonosov and Kashik, 2006;张国杰等,2008;Hasan and Polinski, 2009).根据过套管电阻率测井仪供电电极系的不同,可将过套管电阻率测井仪分为单极供电型和双极供电型.基于单供电电极型的过套管电阻率测井仪以斯仑贝谢公司的仪器CHFR系列为主,并配备了全套的测井服务,从2002年开始在我国各大油田展开测试.基于双供电电极型的过套管电阻率测井仪以俄罗斯地球物理研究院研制的仪器ECOS为代表(Кривоносов and Кашик,2006),并于2006年销往我国,在华北(张国杰等,2008)、辽河(王正国,2009)、新疆(孙中春等,2011)、大庆(谢进庄,2011)等油田投入使用.我国许多机构在仪器ECOS的引进、消化、吸收的基础上,积极参与到过套管电阻率测井仪的研发中,目前中国石油集团西部钻探工程有限公司和中国石油集团测井有限公司分别自主研发了XCRL和TCFR型过套管电阻率测井仪(杜中闻和陈斌,2009;包德洲等, 2009,2013),其电极系结构与仪器ECOS类似.俄罗斯仪器和国产仪器均无配套的测井资料处理方法与技术.
随着油气勘探和开发的不断深入,薄储集层也逐渐成为重要的目的层.尽管过套管电阻率测井仪在设计和研发时充分考虑到如何提高仪器的分辨率,但是始终受到仪器测量准确性和电子线路的制约.各种商业化的过套管电阻率测井仪的分辨率均大于1 m,而我国许多油气储集层的厚度小于1 m,严重影响了这种测井新技术的地质应用效果.因此,关于过套管电阻率测井资料的薄层校正问题一直是人们所关注的问题(尤建军等,2005;王正国,2009;谢进庄等,2010).目前的薄层校正大多只是针对一种特定电极距的仪器,如俄罗斯的ECOS,还缺乏适用于不同电极距的双极供电型过套管电阻率测井仪系统、全面的薄层校正方法及软件实现技术.本文利用修正的传输线理论(刘福平等, 2007,2011;高杰等,2008),采用数值模拟方法,全面分析了地层厚度和电阻率的影响.为电极距分别为1.0 m和1.1 m的双极供电型过套管电阻率测井仪建立了一套完善的薄层校正图版.编制了相应的计算机处理程序,挂接到常用的测井资料处理与解释平台上,实现自动查找校正图版,方便、快捷地进行薄层校正.利用编制的双极供电型过套管电阻率测井仪的薄层校正模块对新疆油田和长庆油田上百口井的测井资料进行了处理,获得了良好的应用效果.
1 理论分析方法
早在1939年,前苏联科学家L. M. Aplin就提出了基于2个供电电极的过套管电阻率测井理论,但仪器的研发受制于当时电子元器件的技术水平,直到2002年俄罗斯地球物理研究院才完成了其过套管电阻率测井仪ECOS的研制,我国多数国产仪器也采用了双供电电极法.目前关于双供电电极的过套管电阻率测井理论分析方法大多采用修正的传输线方程.
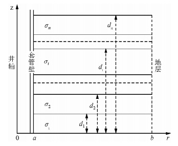
实际井下套管径向依次为套管壁、水泥环和地层3层介质,垂向上由地层组成.为简化分析地层对过套管电阻率测井仪的影响,把套管壁外面的介质看成层状、均匀的无限大地层(径向上不考虑水泥环的存在),简化后的地层数学模型如图 1所示,设电源所在位置为坐标原点,向套管壁注入电流后沿套管向上流动的电流为I0.径向上分为2层介质:套管壁和地层,套管外垂向上由n层地层组成.根据过套管电阻率测井修正的传输线理论有

![]() | (m);b为“电气无穷远点”(电势为零)到井轴的距离,(m);σi为轴向上第i层地层的电导率,(S/m);di为轴向上第i层地层顶界面高度,(m).>图 1 地层简化模型Fig. 1 Simplified model of formation |
在第i层块状均匀地层中,套管上某点z(di-1 因此金属套管壁上任意点z处的电位分布Ui(z)及电流分布Ii(z)为 2 地层影响分析 根据理论分析方法,建立了不同地层厚度和电阻率时的地层模型,数值模拟了双极供电型过套管电阻率测井仪的测井响应特征.计算时仪器电极距L=1.0 m,电流I0=6.0 A;金属套管半径a=63.5 mm,套管壁厚度Δa=7.52 mm,套管单位长度电导Sc=5.0×106 S. 2.1 地层厚度的影响 首先分析地层厚度对双极供电型过套管电阻率测井仪的影响.采用的地层模型和数值模拟结果如图 2所示.模型中设置了编号为Ⅰ、Ⅱ、Ⅲ和Ⅳ共4个目的层,厚度h分别为2.0 m、1.0 m、0.8 m和0.5 m,电阻率Rt均为50 Ω · m.目 的层上下均设置为围岩,厚度h为2.0 m,电阻率Rt为10 Ω · m. 结合目的层厚度,对比分析地层电阻率曲线Rt与过套管地层视电阻率曲线Ra可以发现,当目的层(Ⅰ)厚度大于仪器电极距(h>L)时,在地层内部距上、下界面0.5L的范围内受到上下地层的影响,在剩余中间段(h-L)的范围内Ra与Rt相等.当目的层(Ⅱ)厚度等于仪器电极距(h=L)时,仅在地层中间位置处Ra与Rt相等.当地层厚度小于仪器电极距(h 因此,当目的层厚度大于双极供电型过套管电阻率仪的电极距时,测量值不受上下围岩的影响.当目的层厚度与电极距相等时,只有地层中间位置处的视电阻率值代表了真实电阻率值.当目的层厚度小于电极距时,目的层受上下围岩的影响较严重,且厚度越小影响越大. 2.2 地层电阻率的影响 其次分析地层电阻率对双极供电型过套管电阻率测井仪的影响.采用的地层模型和数值模拟结果如图 3所示.模型中设置了编号为Ⅰ、Ⅱ、Ⅲ和Ⅳ共4个目的层,电阻率Rt 分别为10 Ω · m、20 Ω · m、40 Ω · m和50 Ω · m,厚度均为0.5 m.目的层上下均设置为围岩,电阻率Rt为30 Ω · m,厚度为2.0 m. 由地层厚度对双极供电型过套管电阻率测井仪的影响可知,由于目的层厚度为0.5L,因此目的层的测井响应受到上下围岩的影响.结合目的层电阻率,对比分析图 3中的地层电阻率曲线Rt与过套管地层视电阻率曲线Ra可以发现,当目的层电阻率小于围岩的电阻率时,目的层的过套管地层视电阻率值偏大,例如目的层(Ⅰ)电阻率为10 Ω · m时,视电阻率Ra=12 Ω · m,比电阻率Rt偏大20%;目的层(Ⅱ)电阻率为20 Ω · m时,视电阻率Ra=21.8 Ω · m,偏大9%.当目的层电阻率大于围岩的电阻率时,目的层的过套管地层视电阻率值偏小,例如目的层(Ⅲ)电阻率为40 Ω · m时,视电阻率Ra=36.9 Ω · m,比电阻率Rt偏小7.75%;目的层(Ⅱ)电阻率为50 Ω · m时,视电阻率Ra=42.9 Ω · m,偏小14.4%. 因此,当目的层厚度小于双极供电型过套管电阻率仪的电极距时,若目的层电阻率小于上下围岩的电阻率,过套管地层视电阻率值偏大;若目的层电阻率大于上下围岩的电阻率,过套管地层视电阻率值偏小;且目的层电阻率与围岩电阻率差异越大,对过套管电阻率仪的影响越大. 3 薄层校正图版 基于理论分析方法,分析地层对双极供电型过套管电阻率测井仪的影响后,利用数值模拟方法建立薄层校正图版.在不同套管规格下计算得到的校正图版是相同的.图 4为适用于电极距为1.0 m的双极供电型过套管电阻率测井仪的薄层校正图版,例如俄罗斯仪器ECOS和国产仪器XCRL.图中横坐标是目的层视电阻率与围岩电阻率的比值,纵坐标 是校正系数,显示了目的层厚度h分别为0.3 m、0.5 m、0.7 m和0.9 m时的薄层校正曲线.图 5为适用于电极距为1.1 m的双极供电型过套管电阻率测井仪的薄层校正图版,例如国 产仪器TCFR.图中显示了目的层厚度h分别为 0.4 m、0.6 m、0.8 m和1.0 m时的薄层校正曲线. 从2个薄层校正图版上可以发现,当目的层电阻率与围岩电阻率一定、且目的层厚度小于电极距时,目的层厚度越小,其视电阻率值的校正量越大.当目的层厚度小于电极距时,若目的层电阻率值大于围岩电阻率值时,校正系数大于1;若目的层电阻率值小于围岩电阻率值时,校正系数小于1. 4 软件实现 当目的地层厚度小于双 极供电型过套管电阻率测井仪电极距时,有必要进行过套管地层视电阻率的薄层校正.首先根据仪器的电极距选择校正图版,其次根据目的层厚度选择校正曲线,最后根据目的层视电阻率与围岩电阻率的比值确定校正系数.为了在实际井资料处理中方便、快捷地对薄储集层进行校正,编制了相应的计算机程序,已挂接到测井资料处理与解释平台FORWARD(Formation Oil & Gas Reservoir Well-Logging Analysis & Research & Development)和中国石油集团测井有限公司研制的测井资料处理平台LEAD(Log Evaluation & Application Desktop)中.例如借助FORWARD开发工具包SDK(Software Development Kit),在Microsoft Visual C++ 6.0环境下,采用C++语言编制的双极供电型过套管电阻率测井仪的薄层校正模块主界面如图 6所示.包括了选择需要校正的过套管电阻率曲线、输出校正后的曲线、选择仪器类型、填写目的层的相关参数等,并在处理后给出相应的处理信息.该程序可自动查找图版和校正,实现校正结果的图形化显示. 利用编制的薄层校正程序对新疆油田和长庆油田上百口井的测井资料进行了处理,例如新疆油田某区块TX探井的校正结果如图 7所示.该区块三叠系克拉玛依上组地层属于砂泥岩互层沉积,TX井于2009年9月进行了裸眼井常规测井,测井解释XY88.1~XY88.9 m为薄砂层.2011年7月利用俄罗斯过套管电阻率测井仪ECOS完成了克拉玛依上组XY84~XY92 m井段的测试.图 7中第一道显示了裸眼井自然伽马GR和自然电位SP测井曲线;第二道为深度值;第三道Rt为裸眼井深探测电阻率测井曲线,RECOS为仪器ECOS采集的原始过套管地层电阻率值经过预处理后形成的测井曲线(孙中春等,2011;周继宏和袁瑞,2012;匡立春等,2013).在该薄砂层处,Rt为60 Ω · m,RECOS值仅为39 Ω · m;而在上下泥岩层中两者几乎相等.由于TX井未进行射孔开采,且在下套后不久就进行了过套管电阻率测井,认为该薄 层处的电阻率基本未发生改变,过套管电阻率值受到了上下围岩的影响,需要进行薄层校正. 选择适用于电极距为1.0 m的薄层校正图版,取目的层厚度为0.8 m,围岩电阻率取7 Ω · m,校正系数为1.48,校正后的过套管电阻率测井值为57.7 Ω · m(校正后曲线为RC-ECOS),与Rt接近,过套管电阻率测井值更合理. 根据双极供电型过套管电阻率测井仪的薄层校正分析方法,基于修正的传输线理论,全面分析了地层厚度和电阻率对测井值的影响.当薄层的厚度小于仪器电极距时,双极供电型过套管电阻率测井仪受到上下地层的影响较严重,且薄层的电阻率与上下围岩的电阻率差异越大影响越大,需要进行薄层校正.建立了电极距分别为1.0 m和1.1 m的双极供电型过套管电阻率测井仪的薄层校正图版,适用于不同电极距的俄罗斯仪器和国产仪器.编制了相应的计算机处理程序,挂接到常用的测井资料处理与解释平台上,可自动查找图版,实现薄层的自动化校正.油田实际测井资料处理结果表明校正方法是可行和有效的.
无量纲,反应了地层特性;I(z)为z点的电流,(A);U(z)为z点的电位,(V);Sc为套管单位长度电导,(S).



图 2 地层厚度影响分析图Fig. 2 Analytical map of formation thickness 
图 3 地层电阻率影响分析图Fig. 3 Analytical map of formation resistivity 
图 4 薄层校正图版(适用于仪器电极距为1.0 m)Fig. 4 Correction chart of thin layers(fit for spacing of electrodes is 1.0 m) 
图 5 薄层校正图版(适用于仪器电极距为1.1 m)Fig. 5 Correction chart of thin layers(fit for spacing of electrodes is 1.1 m) 
图 6 薄层校正程序界面Fig. 6 Program interface of correction of thin layers 
图 7 TX井薄砂层校正结果图Fig. 7 Result of one thin s and layer’s correction in TX well
| [1] | Aulia K, Poernomo B, Richmond W C, et al. 2001. Resistivity behind casing[J]. Oilfield Review, 13(1): 2-25. |
| [2] | Bao D Z, Cheng X, Wu J Y, et al. 2009. Cased hole resistivity logging detector: China, ZL200820122915.X[P] (in Chinese). |
| [3] | Bao D Z, Liiu J, Wang L N, et al. 2013. Development of TCFR casedhole resistivity logging tool[J]. Well Logging Technology (in Chinese), 37(3): 314-316, 321. |
| [4] | Douglas H, Gordon K, Jeff H, et al. 2002. Cased hole formation resistivity applications in Alaska[C].//The SPE Western Regional/AAPG Pacific Section Joint Meeting, SPE- 76751-MS. |
| [5] | Ferguson R, White J, Kadi A E. 2001. Direct measurement of formation resistivity through steel casing solves a North Sea production question[C].//The SPE Annual Technical Conference and Exhibition, SPE- 71715-MS. |
| [6] | Gao J, Liu F P, Bao D Z, et al. 2008. Responses simulation of through-casing resistivity logging in heterogeneous-casing wells[J]. Chinese J. Geophys. (in Chinese), 51(4): 1255-1261. |
| [7] | Gao J, Liu F P, Bao D Z, et al. 2008a. Responses simulation of through-casing resistivity logging in heterogeneous casing wells[J]. Chinese J.Geophys.(in Chinese), 51(4): 892-899, doi: 10.1002/cjg2.1283. |
| [8] | Gao J, Liu, F P, Bao D Z, et al. 2008. Study on forward modeling of through-casing resistivity logging[J]. Science in China (Series D: Earth Sciences) (in Chinese), 51(S1): 186-190. |
| [9] | Hasan W A M W, Polinski R K. 2009. Cased hole resistivity- a solution for Dukhan field Arab C reservoir[C].//International Petroleum Technology Conference, IPTC-13196-MS. |
| [10] | Kaufman A A. 1989. Conductivity determination in formation having a cased well: U.S.A, 4796168[P]. |
| [11] | Krivonosov R I, Kashik А S. 2006. Field trials of the EKOS-31-7 technology [C].//The 4th China-Russia International well logging Symposium collection works. Beijing: Petroleum Industry Press, 46-62. |
| [12] | Kuang L C, Sun Z C, Zhou J H, et al. 2013. Formation Resistivity Log Through Casing[M]. Beijing: Petroleum Industry Press, 53-69. |
| [13] | Кривоносов Р И, Кашик А С. 2006. Эксплуатационные испытания технологии ЭКОС-31-7[C].//The 4th China-Russia International well logging Symposium collection works. Beijing: Petroleum Industry Press, 34-46. |
| [14] | Liu F P, Gao J, Sun B D, et al. 2007. Forward calculation of the resistivity logging response through casing by transmission line equation for multi-layer formations[J]. Chinese J. Geophys. (in Chinese), 2007, 50(6): 1905-1913. |
| [15] | Liu F P, Chen X A, Yang C C. 2011. The progress on calculation of resistivity logging response through casing[J]. Progress in Geophysics (in Chinese), 26(6): 2018-2025, doi: 10.3969/j.issn.1004-2903.2011.06.016. |
| [16] | Sun Z C, Luo X P, Zhou J H, et al. 2011. Preprocessing for raw data of formation resistivity log through cased hole[J]. Well Logging Technology (in Chinese), 35(2): 151-154. |
| [17] | Tchambaz M. 2004. Reservoir monitoring with cased hole formation resistivity logs in water injection oil fields, Libya[J]. Petrophysics, 45(4): 38-385. |
| [18] | Wang Z G. 2009. Study on the Russian through casing resistivity logging and its application[J]. Well Logging Technology (in Chinese), 33(4): 374-378. |
| [19] | Xie J Z, Yang J H, Liu F P, et al. 2010. Study on the environment effect and its correction method for the formation resistivity logging data through casing[J]. Progress in Geophysics (in Chinese), 25(1): 258-265, doi: 10.3969/j.issn.1004-2903.2010.01.034. |
| [20] | Xie J Z. 2011. Data interpretation and application of ЭКОС-31-7 cased hole resistivity logging tool in Daqing oilfield[J]. Well Logging Technology (in Chinese), 35(1): 45-50. |
| [21] | You J J, Zhang C M, Chen X, et al. 2005. The principle of CHFR logging and it's influence factors [J]. Progress in Geophysics (in Chinese), 20(3): 780-785, doi: 10.3969/j.issn.1004-2903.2005.03.033. |
| [22] | Yuan H Z, Lu D W, Zhang X Y, et al. 2005. An overview of recent advances in well logging technology[J]. Progress in Geophysics (in Chinese), 20(3): 786-795, doi: 10.3969/j.issn.1004-2903.2005.03.034. |
| [23] | Zhang G J, Zhang C J, Zhao G R, et al. 2008. Application of CHFR in evaluation of JING11 block flooded reservoirs[J]. Well Logging Technology (in Chinese), 32(5): 451-454. |
| [24] | Zhou J H, Yuan R. 2012. Automatic test method for abnormal data of formation resistivity logging through casing[J]. Progress in Geophysics (in Chinese), 27(3): 1189-1194, doi: 10.6038/j.issn.1004-2903.2012.03.044. |
| [25] | Zhou Q, Wicaksono A. 2004. Proper interpretation of casedhole resistivity logs for better reservoir management[C].//SPWLA-2004-TT, SPWLA 45th Annual Logging Symposium, June 6-9. |
| [26] | 包德洲, 程希, 吴金云,等. 2009. 过套管电阻率测井探测器: 中国, 200820122915.X[P]. |
| [27] | 包德洲, 刘杰, 王利宁,等. 2013. TCFR型过套管电阻率测井仪研制[J]. 测井技术, 2013, 37(3): 314-316, 321. |
| [28] | 杜中闻, 陈斌. 2009. 西部钻探成功研制新型测井仪[N]. 中国石油报. |
| [29] | 高杰, 刘福平, 包德洲,等. 2008. 非均匀套管井中的过套管电阻率测井响应[J]. 地球物理学报, 51(4): 1255-1261. |
| [30] | 高杰,刘福平,包德洲,等.2008. 过套管电阻率测井数值模拟研究[J]. 中国科学: D辑地球科学,38(S1): 186-190. |
| [31] | 匡立春, 孙中春, 周继宏,等. 2013. 过套管地层电阻率测井[M]. 北京: 石油工业出版社, 53-69. |
| [32] | 刘福平, 高杰, 孙宝佃,等. 2007. 实际井眼条件下过套管电阻率测井响应的传输线方程正演算法[J]. 地球物理学报, 50(6): 1905-1913. |
| [33] | 刘福平, 陈小安, 杨长春. 2011. 过套管电阻率测井响应数值模拟研究[J]. 地球物理学进展, 26(6): 2018-2025, doi: 10.3969/j.issn.1004-2903.2011.06.016. |
| [34] | 孙中春, 罗兴平, 周继宏,等. 2011. 过套管电阻率测井资料预处理方法[J]. 测井技术, 35(2): 151-154. |
| [35] | 王正国. 2009. 俄罗斯过套管电阻率测井研究及应用[J]. 测井技术, 33(4): 374-378. |
| [36] | 谢进庄, 杨景海, 刘福平,等. 2010. 过套管地层电阻率曲线环境影响校正方法研究[J]. 地球物理学进展, 25(1): 258-265, doi: 10.3969/j.issn.1004-2903.2010.01.034. |
| [37] | 谢进庄. 2011. ЭКОС-31-7过套管电阻率测井仪资料解释及其应用[J]. 测井技术, 35(1): 45-50. |
| [38] | 尤建军, 张超谟, 陈详,等. 2005. CHFR测井原理及影响因素研究[J]. 地球物理学进展, 20(3): 780-785, doi: 10.3969/j.issn.1004-2903.2005.03.033. |
| [39] | 原宏壮, 陆大卫, 张辛耘,等. 2005. 测井技术新进展综述[J]. 地球物理学进展, 20(3): 786-795, doi: 10.3969/j.issn.1004-2903.2005.03.034. |
| [40] | 张国杰, 张崇军, 赵国瑞,等. 2008. 过套管电阻率测井在京11断块水淹层评价中的应用[J]. 测井技术, 32(5): 451-454. |
| [41] | 周继宏, 袁瑞. 2012. 过套管电阻率测井异常测量值的自动检验方法[J]. 地球物理学进展, 27(3): 1189-1194, doi: 10.6038/j.issn.1004-2903.2012.03.044. |
2015, Vol. 30


