文章信息
- 张明聚, 晋刘杰, 刘义, 王鹏程, 张卫业
- ZHANG Mingju, JIN Liujie, LIU Yi, WANG Pengcheng, ZHANG Weiye
- 地铁车站PBA工法施工变形风险管控实例分析
- A case study of risk management and control of construction deformations in metro station project built by PBA method
- 武汉大学学报(工学版), 2016, 49(6): 893-898
- Engineering Journal of Wuhan University, 2016, 49(6): 893-898
- http://dx.doi.org/10.14188/j.1671-8844.2016-06-016
-
文章历史
- 收稿日期: 2015-12-17
2. 中铁十二局集团第二工程有限公司,山西 太原 030032
2. 2nd Engineering Co., Ltd. of 12th Bureau Group of China Railway, Taiyuan 030032, China
地下工程一般具有规模大、投资高、施工周期较长、施工项目繁多、施工技术难度大、施工不可预见性因素多以及出现事故社会影响比较大的特点,属于高风险的建设工程.针对地下工程的这些特点,一些专家学者对地下工程的风险管理及相关内容做了大量的研究.钱七虎、戎晓力[1]论述了地下工程安全风险管理的现状和地下工程安全风险管理实践中的问题;杨树才[2]结合我国建设实际首次建立了一套贯穿地下工程建设全过程的以安全风险管理体系为保障、技术标准体系为支撑和实时监控体系为手段的综合动态管控模式,实现了将传统的注重安全事故处理向现代的全过程安全风险预防的转变;胡元鑫、刘新荣、李晓红等[3]结合工程实例证明了基于监控量测的风险管理和控制方法能较好地进行风险评估和预测,在地下或隧道工程建设中具有举足轻重的作用,但仅能在施工及运营阶段应用,无法满足地下工程施工阶段前的风险识别和评估要求;苏斌[4]指出地铁暗挖工程建设中的主要控制点,总结了风险管理与控制的主要有效手段;李兆平、朱元升[5]研究了PBA工法施工地铁车站邻近桥桩的保护措施,提出了地铁工程邻近桥桩风险等级划分方法;扈世民、王梦恕、张丽[6]等应用变位分配法原理对PBA工法引起的地层变形进行了分阶段研究;贾少春[7]对北京地铁7号线双井站PBA工法导洞开挖各种组合进行了数值模拟研究,指出小导洞开挖和扣拱施工是控制地表沉降的关键步序;姚君华、宋文杰、董军[8]采用数值模拟研究了小导洞开挖对地表沉降的影响,指出“先下后上,先两边后中间”的开挖方法能有效控制地表沉降;袁扬、刘维宁、丁德云[9]等对洞桩法施工的导洞进洞方式、开挖顺序等方案进行优化,指出分离施工通道方式可以有效地控制施工通道的变形和应力;崔玖江、崔晓青[10]总结北京地铁近几年发生的 42 起事故,地下线占 96% ,而地面线、高架线仅占 4%;瞿万波、刘新荣、傅晏[11]等通过数值模拟研究了洞桩法大断面群洞交叉隧道初衬的受力性能;王芳、王挺、贺少辉[12]等采用三维非连续接触模型模拟施工过程,对PBA工法关键节点的变形和内力进行了研究.虽然在该领域已有很多研究,但是在邻近地下建筑物或地下管线的情况下,施工仍然有很大的风险.
本文以北京地铁16号线玉渊潭东门站为背景进行PBA(Pile-Beam-Arch)工法变形风险管控的研究,该工程横穿或侧穿多条地下管线,需要严格控制施工引起的沉降或变形,拟给出采用数值模拟和监控量测手段进行施工过程风险管理的关键步骤,以期为后续类似工程提供参考依据.
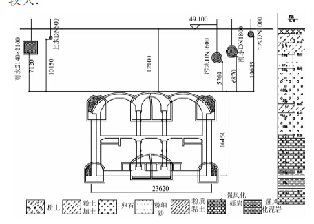
1 工程概况北京地铁16号线17标玉渊潭东门站位于月坛南街与三里河路T字交叉口处,为双层三跨暗挖地下岛式车站,主体采用PBA暗挖法施工,总长256.60m,总宽21.20 m,岛式站台宽12.00 m,底板埋深27.86 m,拱顶覆土约11.31 m.车站主体导洞剖面及地层构成见图 1.该车站所处地层有一层地下水,为层间水(三),水位埋深19.80~20.80 m,水位标高27.67~27.47 m,含水层主要为卵石层.开挖结构的中下部位于层间水(三)含水层中,底部位于砾岩层中.含水层主要为卵石⑦ 和卵石⑨ 层,该层地下水渗透系数大,补给充足,对结构施工影响较大.
|
| 图 1 车站主体导洞剖面 Figure 1 Profile of station structure |
车站结构所处地层围岩级别均属Ⅵ级,拱顶主要位于砂卵石地层中,围岩稳定性较差,开挖后自稳时间短,尤其是人工填土层及粗颗粒土层无粘聚力,容易滑塌.施工过程中地表最大沉降量要求不超过60 mm,车站主体横穿或侧穿多条市政管线,根据《城市轨道交通地下工程建设风险管理规范》(以下简称规范1)、《北京市轨道交通工程建设安全风险技术管理体系》(以下简称规范2)均为一级风险源,要求管线沉降量不超过20 mm,详情见表 1.
2 PBA暗挖地铁车站变形数值模拟通过数值建模,尽量模拟施工过程的情况,找出施工过程中的薄弱点和关键点,在实际施工的时候进行重点处理,对于风险管理和控制不失为一种经济可行的手段.
2.1 模型尺寸结合经验数据,模型水平方向车站两侧各取开挖洞径的3倍,水平方向总长度150 m,下边界取至下导洞底部50 m,上边界取至地表;考虑纵向边界效应,纵向长度取45 m,共划分73 784个节点和72 450个单元.与Y轴垂直的底面约束Y方向的位移,与X轴垂直的两面约束X方向位移,与Z轴垂直的两面约束Z方向的位移,上部边界取自由面.计算模型见图 2.
| 风险工程名称 | 风险基本状况描述 | 风险工程等级 | 控制标准(沉降量/差异沉降/平均沉降速率) | |
| 按规范1规定 | 按规范2规定 | |||
| 暗挖车站主体结构旁穿市政管线 | 车站主体结构侧穿D1800混凝土雨水管,距主体结构水平距离约4.2 m,垂直距离约6.6 m | Ⅰ | 一级 | 允许位移控制值≤20 mm,倾斜率控制值≤0.0025,变形速率控制指标为≤3 mm/d |
| 车站主体结构侧穿D1600混凝土污水管,距离主体结构水平距离约1 m,垂直距离最近约3.52 m | Ⅰ | 一级 | 同上 | |
| 车站主体结构侧穿2 400×2 150雨水砖砌方沟,距主体结构垂直距离约7.12 m,水平距离约7.8 m | Ⅰ | 一级 | 同上 | |
| 车站主体结构侧穿D500雨水管,距主体结构水平距离约2.83 m,垂直距离约9 m | Ⅰ | 一级 | 同上 | |
| 车站主体结构侧穿D600上水管,距主体结构水平距离约7.6 m,垂直距离约8 m | Ⅰ | 一级 | 允许位移控制值≤20 mm,倾斜率控制值≤0.002,变形速率控制指标为≤2 mm/d | |
| 车站主体结构侧穿D1000上水管,距离车站主体结构水平距离约7.53 m,垂直距离约9.48 m | Ⅰ | 一级 | 同上 | |
| 暗挖车站主体结构垂直下穿市政管线 | 暗挖车站下穿1 800×1 000热力管线,距离车站拱顶约7.5 m | Ⅰ | 一级 | 允许位移控制值≤20 mm,倾斜率控制值≤0.0025,变形速率控制指标为≤3 mm/d |
| 暗挖车站斜穿1 050污水管,距离车站拱顶约7.5 m.改移后正穿车站主体 | Ⅱ | 一级 | 同上 | |
| 暗挖车站下穿D300污水管,距离车站拱顶约5.7 m | Ⅰ | 二级 | 同上 | |
|
| 图 2 模型网格划分 Figure 2 Model meshing |
车站模型周围土体采用实体单元,采用摩尔库伦准则模拟;小导洞初支和扣拱初支采用shell单元模拟,没有单独模拟超前小导管注浆加固和钢格栅,将其强度按照等效原则分配给了初支喷射混凝土[13].围护桩、中柱和二衬均采用改变土体参数的方式模拟,车站结构部分均采用线弹性模拟.为了便于建模和计算,结合工程实际情况和地勘资料,将现场土层简化成5层,土体弹性模量按照工程经验,选为压缩模量的3~5倍.各土层和结构材料相关参数见表 2、表 3.
| 地层编号 | 岩性名称 | 厚度/m | φ/kPa | C/(°) | Kv/(MPa·m-1) | Kx/(MPa·m-1) | fka/kPa |
| ① | 粉土填土 | 2 | 8 | 10 | |||
| ① 1 | 杂填土 | 2 | 0 | 8 | |||
| ③ | 粉土 | 2 | 17 | 23 | 20 | 25 | 160 |
| ③ 3 | 粉细砂 | 2 | 0 | 25 | 25 | 30 | 220 |
| ⑤ | 卵石 | 7 | 0 | 40 | 60 | 70 | 400 |
| ⑥ | 粉质粘土 | 1 | 28 | 14 | 30 | 35 | 200 |
| ⑥ 2 | 粉土 | 1 | 15 | 27 | 35 | 40 | 230 |
| ⑦ | 卵石 | 4 | 0 | 42 | 70 | 80 | 600 |
| ⒀ | 砾岩 | 7 | 25 | 35 | 75 | 120 | 600 |
| ⒀1 | 泥岩 | 4 | 40 | 30 | 65 | 65 | 400 |
| 注:C为内摩擦角; φ为黏聚力; Kv为垂直基床系数; Kx为水平基床系数; fka为地基承载力特征值 | |||||||
| 构件名称 | 密度/(kg·m-3) | 弹性模量/GPa | 泊松比 |
| 初支 | 2 300 | 12.5 | 0.25 |
| C20混凝土回填 | 2 400 | 25.5 | 0.20 |
| 二衬 | 2 500 | 35.0 | 0.25 |
| 边桩 | 2 500 | 25.5 | 0.25 |
| 中柱 | 2 500 | 35.0 | 0.25 |
| 顶纵梁 | 2 500 | 25.5 | 0.25 |
根据模型情况,地表纵向每隔5 m取一个数值监测断面,横向根据网格情况和距离车站中心的远近成梯度布置沉降监测点,数值监测点布置见图 3.数值监测点地表沉降历时曲线、地表沉降槽曲线、管道沉降历时曲线见图 4.
|
| 图 3 地表数值监测点布置 Figure 3 Arrangement of monitoring points at ground surface |
|
| 图 4 数值模拟结果 Figure 4 Results of numerical simulation |
从图 4可以看出,该施工过程最大沉降量发生在扣拱二衬完成阶段,主要沉降过程发生在小导洞施工阶段,小导洞施工完成之后最大沉降量达到24 mm,发生在中间导洞的中间位置,占总沉降量的75%,是控制地表沉降的关键过程.主要原因是由于中间导洞的开挖洞径较大,尤其是上中导洞施工时,沉降量快速增加.而中板和底板施工过程中,地表沉降量由最大值的32 mm减少到了最终的26 mm,这是由于中板底板施工过程中土体开挖量大,底板以下的土体发生了较大的回弹变形造成的.综合以上分析可知,PBA工法地下工程开挖时地表沉降量是地表沉降和底板回弹共同作用的结果,尤其是车站结构施工完成后,车站形成了整体的受力体系,由于上覆土较浅,底板以下土体的回弹造成了整体结构的上浮.
3 PBA暗挖地铁车站主要风险管控 3.1 施工风险管控措施1) 由于现场环境复杂,根据设计图纸和现场实际情况制定了开挖支护方案,对于关键的施工步序,制定了专项施工方案和风险控制措施,主要包括小导洞开挖专项施工方案、人工挖孔桩专项施工方案、钢管柱安装专项施工方案、扣拱施工专项施工方案、小导管注浆专项施工方案、地上管线保护专项方案等.
2) 由数值模拟看出,小导洞开挖是控制沉降的关键步骤,也是容易发生事故的高风险阶段;导洞开挖之前,通过现场监测实时掌握地下水动态,确认降水水位与降水方案中的要求相符,开始导洞施工;导洞开挖过程中,合理地控制导洞开挖进尺和及时封闭成环;小导洞采用台阶法预留核心土施工,上台阶采用环形开挖预留核心土法,开挖进尺按照设计的拱架间距,开挖后及时初喷,封闭掌子面,架设钢格栅,挂网喷射混凝土,紧接着开始下台阶施工,上下台阶间距控制在3~5 m,下台阶开挖后及时架设钢格栅和挂网喷射混凝土,及时完成初支封闭,12 h后进行下一环开挖.多个小导洞同时开挖的过程中控制好各个导洞之间的间距,尽量减小群洞效应对地面沉降的影响.实际施工过程中,先开挖下导洞,后开挖上导洞,同层导洞先开挖边导洞,后开挖中导洞;同层导洞前后错开距离大于8 m;上下层导洞同时施工过程中,导洞之间错开2倍导洞洞径且不小于8 m,有效地减小了群洞效应的影响.
3) 由数值模拟看出,扣拱过程中地表和管线沉降速率明显增大,所以在扣拱施工前,必须提前做好超前深孔注浆及超前小导洞注浆加固;超前加固完成后方可进行两导洞间土体开挖支护.施工过程中,两侧要对称作业,减少不对称作业对地面造成的不均匀沉降.
4) 施工过程中加强了监控量测,各阶段马头门破除以及扣拱施工过程中,加密监测频率和调整预警值,对于薄弱点和关键点(比如拱顶、拱脚以及上部管线),施工过程对其的监测频率由设计要求的两天一测改成一天一测;采用设计要求预警值的90%作为监测预警值.
3.2 地下管线的保护措施该工程由于穿越多条市政管线,有多个一级风险源,而且主要风险就是环境风险,所以在施工过程中加强管线的保护尤为重要.虽然模拟过程中管线最大沉降量都没有超过控制值,但是下降和上浮的多次扰动很有可能引起管道接口裂缝,造成管线渗漏,从而引发重大事故.主要保护措施如下:
1) 对于车站东侧平行侧穿上水管、污水管、雨水管,在上层边导洞内进行深孔注浆对管线下方土体进行加固;对于垂直下穿的热力管沟以及污水管线,在下穿部位局部进行上层导洞的全断面深孔注浆施工.注浆孔采用环形布置,扩散半径取0.75m,每一循环注浆长度12 m,挖10 m,搭接长度(预留止浆墙)2.0 m,止浆墙采用C20挂网喷射混凝土,厚度为0.3 m,注浆加固土体范围为开挖轮廓外1.5 m,开挖轮廓内0.5 m;最大限度地减小了施工造成的管线沉降.
2) 车站暗挖结构施工前及完成后由地面进行雷达探测,探测暗挖结构周边土层的空洞及密实情况,对空洞及时采用注浆填充.根据探测情况,在开挖后进行了多次后背回填注浆,尤其在小岛洞施工阶段,掌子面后方5 m以外的距离都根据情况进行不同程度的注浆,有效地控制了地表沉降,满足了设计要求.
3) 加强施工过程中的监测工作,及时进行数据分析,每天处理完监测数据后都要上报日报,每周有周报、每月有月报等不同形式报表,做好信息化指导施工.对于中导洞拱顶、隧道横穿管道以及横通道转弯处等重点部位,监测频率由设计要求的两天一测改为一天一测.
4 PBA暗挖地铁车站现场监测 4.1 监测范围及测点布置施工时监测范围主要包括主体结构两侧外50 m范围内,施工期间发生异常情况,如严重的涌水、涌砂、漏水、支护结构或周边建筑物及地下管线严重变形等,适当加大监测范围.监测对象主要包括导洞周边环境、支护结构体系及背后土体.监测断面图见图 5.
|
| 图 5 测点布置断面 Figure 5 Section of monitoring points |
在该工程中,主要对地表沉降和管线沉降进行及时的现场监测.车站地表、管线沉降量根据设计要求分别取60 mm和20 mm.导洞开挖阶段和扣拱阶段地表累计沉降量分别为总控制值的55%和80%.对施工过程的监测数据统计分析发现,地表和管线沉降控制效果都较好,满足设计要求,典型断面累计沉降量见表 4.
| 断面1 | 测点编号 | ZSG1-02 | ZYG2-01 | ZWG1-02 | ZDB1-09 | ZDB1-10 | ZDB1-11 |
| 沉降量/mm | -9.17 | -7.75 | -7.75 | -21.9 | -21.2 | -21.7 | |
| 断面2 | 测点编号 | SG1-06 | YG1-05 | WG1-05 | DB8-03 | DB8-04 | DB8-05 |
| 沉降量/mm | -10 | -16.4 | -16.4 | -21.9 | -22.6 | -20.6 | |
| 断面3 | 测点编号 | SG1-08 | YG1-07 | WG1-07 | DB9-04 | DB9-05 | DB9-06 |
| 沉降量/mm | -10.09 | -9.97 | -9.97 | -21.9 | -21.6 | -21.8 | |
| 断面4 | 测点编号 | ZSG1-11 | YG1-10 | WG1-10 | ZDB10-03 | ZDB10-04 | ZDB10-05 |
| 沉降量/mm | -8.89 | -12.1 | -12.1 | -21.2 | -23 | -21.6 | |
| 断面5 | 测点编号 | SG1-14 | YG1-13 | WG1-13 | DB11-04 | DB11-05 | DB11-06 |
| 沉降量/mm | -10 | -11.22 | -11.22 | -21.4 | -21.4 | -21.3 | |
| 断面6 | 测点编号 | ZSG1-17 | ZYG1-16 | ZWG1-16 | ZDB13-04 | ZDB13-05 | ZDB13-06 |
| 沉降量/mm | -9.08 | -10.45 | -10.45 | -20.7 | -21.5 | -22.1 | |
| 断面7 | 测点编号 | SG1-19 | YG1-19 | WG1-19 | SG2-03 | SG2-04 | SG2-05 |
| 沉降量/mm | -9.46 | -12.32 | -12.77 | -20.13 | -22.32 | -22.14 | |
| 断面8 | 测点编号 | YG1-10 | WG1-24 | RL1-04 | RL1-05 | RL1-06 | |
| 沉降量/mm | -11.09 | -13.54 | -18.4 | -17.5 | -5.9 | ||
| 断面9 | 测点编号 | ZYG1-14 | ZWG1-30 | ZDB19-01 | ZDB19-02 | ZDB19-03 | |
| 沉降量/mm | -17.69 | -18 | -21 | -19.6 | -19.8 | ||
| 断面10 | 测点编号 | YG1-32 | WG1-33 | DB22-03 | DB22-04 | DB22-05 | |
| 沉降量/mm | -17.33 | -9.2 | -8.1 | -11.7 | -12.3 | ||
| 注:ZSG、SG代表上水管,ZYG、YG代表雨水管,ZWG、WG代表污水管,ZDB、DB代表地表. | |||||||
表 4的数据统计到小导洞施工完成阶段,地表最大沉降量22.14 mm,和模拟沉降量24 mm非常接近.施工最大沉降点发生在中导洞中间距离横通道最近的监测点处,受横通道开挖影响,沉降量比其他位置要大一些,但是相比小导洞开挖控制值的33 mm还是完全可以接受的.今后施工过程中要对横通道两侧进行加密监测,确保沉降量在可接受的范围内.
5 结论1) 从数值模拟结果可以看出,PBA工法施工过程最大沉降量发生在扣拱二衬完成阶段,主要沉降过程发生在小导洞施工阶段,小导洞施工完成之后最大沉降量达到24 mm,发生在中间导洞的中间位置,占总沉降量的75%,是控制地表沉降的关键过程.
2) 全断面注浆和后背回填注浆有效地加固了拱顶和管线之间的土体,减少了开挖后由于上部土体松散造成的沉降,有效地保护了隧道上方的各类管线.
3) 通过分析监测数据,到小导洞施工完成阶段,地表最大沉降量22.14 mm,导洞开挖阶段和扣拱阶段地表累计沉降量分别为总控制值的55%和80%,该施工阶段是变形控制的重点.
| [1] |
钱七虎, 戎晓力. 中国地下工程安全风险管理的现状?问题及相关建议[J].
岩石力学与工程学报, 2008, 27(4): 649–655.
Qian Qihu, Rong Xiaoli. State, issues and relevant recommendations for security risk management of China's underground engineering[J]. Chinese Journal of Rock Mechanics and Engineering, 2008, 27(4): 649–655. |
| [2] |
杨树才. 城市轨道交通工程建设安全风险管理体系研究[J].
现代隧道技术, 2014, 51(1): 1–7.
Yang Shucai. Safety risk management system for the construction of urban rail transit projects[J]. Modern Tunnelling Technology, 2014, 51(1): 1–7. |
| [3] |
胡元鑫, 刘新荣, 李晓红, 等. 基于监控量测的山岭隧道工程风险管理分析[J].
岩土工程学报, 2010, 32(7): 1135–1141.
Hu Yuanxin, Liu Xinrong, Li Xiaohong, et al. Engineering risk management of mountain tunnels based on observation[J]. Chinese Journal of Geotechnical Engineering, 2010, 32(7): 1135–1141. |
| [4] |
苏斌. 北京地铁暗挖工程的风险管理与控制[J].
铁道标准设计, 2009(9): 80–84.
Su Bin. Risk management and control of undercutting project of Beijing subway[J]. Railway Standard Design, 2009(9): 80–84. |
| [5] |
李兆平, 朱元生. 邻近桥桩暗挖地铁车站施工方案及桥桩保护措施研究[J].
岩石力学与工程学报, 2008, 27(S1): 3132–3139.
Li Zhaoping, Zhu Yuansheng. Research on construction method of metro station adjacent to bridge piles and reinforcement measures for bridge piles[J]. Chinese Journal of Rock Mechanics and Engineering, 2008, 27(S1): 3132–3139. |
| [6] |
扈世民, 王梦恕, 张丽, 等. 基于变位分配法地铁车站变形规律研究[J].
岩石力学与工程学报, 2013(2): 266–272.
Hu Shimin, Wang Mengshu, Zhang Li, et al. Study of metro station deformation regularity based on deflection distribution control method[J]. Chinese Journal of Rock Mechanics and Engineering, 2013(2): 266–272. |
| [7] |
贾少春. 北京地铁7号线双井站PBA工法数值分析[J].
铁道建筑, 2013(5): 80–83.
Jia Shaochun. Shuangjing station PBA construction method numerical analysis of Beijing subway line 7[J]. Railway Engineering, 2013(5): 80–83. |
| [8] |
姚君华, 宋文杰, 董军. PBA工法导洞不同开挖顺序对地表沉降的影响[J].
公路, 2013(1): 298–302.
Yao Junhua, Song Wenjie, Dong Jun, et al. Different excavation sequence of PBA method effects on ground settlement[J]. Highway, 2013(1): 298–302. |
| [9] |
袁扬, 刘维宁, 丁德云, 等. 洞桩法施工地铁车站导洞开挖方案优化分析[J].
地下空间与工程学报, 2011, 7(S2): 1692–1696.
Yuan Yang, Liu Weining, Ding Deyun, et al. Analysis on heading excavation optimization in metro station constructed by drift-PBA method[J]. Chinese Journal of Underground Space and Engineering, 2011, 7(S2): 1692–1696. |
| [10] |
崔玖江, 崔晓青. 地铁工程建设风险控制与管理[J].
施工技术, 2011, 40(10): 1–9.
Cui Jiujiang, Cui Xiaoqing. Risk control and management of subway engineering construction[J]. Construction Technology, 2011, 40(10): 1–9. |
| [11] |
瞿万波, 刘新荣, 傅晏, 等. 洞桩法大断面群洞交叉隧道初衬数值模拟[J].
岩土力学, 2009, 30(9): 2799–2804.
Qu Wanbo, Liu Xinrong, Fu Yan, et al. Numerical simulation of preliminary lining of large section crossing tunnels constructed with PBA method[J]. Rock and Soil Mechanics, 2009, 30(9): 2799–2804. |
| [12] |
王芳, 王挺, 贺少辉, 等. PBA法扩挖大直径盾构隧道修建地铁车站时结构关键节点的受力分析[J].
中国铁道科学, 2013, 34(5): 54–62.
Wang Fang, Wang Ting, He Shaohui, et al. Mechanical behavior of critical joints in enlarging large diameter shield tunnel by PBA method to bulid metro station[J]. China Railway Science, 2013, 34(5): 54–62. |
| [13] | Group Itasca-Consulting. Fast Lagrangian Analysis of Continue in 3D Version5.01,User's Manual[Z]. Itasca Consulting Group, 2014. |
2016, Vol. 49



